Vente Appartement Paris
479 000 € * - 49 m2 - 1 Chambre - Réf. DOM26221

Vente Appartement
Paris
479 000 € *
Prix : 479 000 € *
* Les honoraires d'agence seront intégralement à la charge du vendeur
  • 3 Pièces
  • 1 Chambre
  • 49 m2

Alésia – 3 pièces – Dernier étage – DPE D

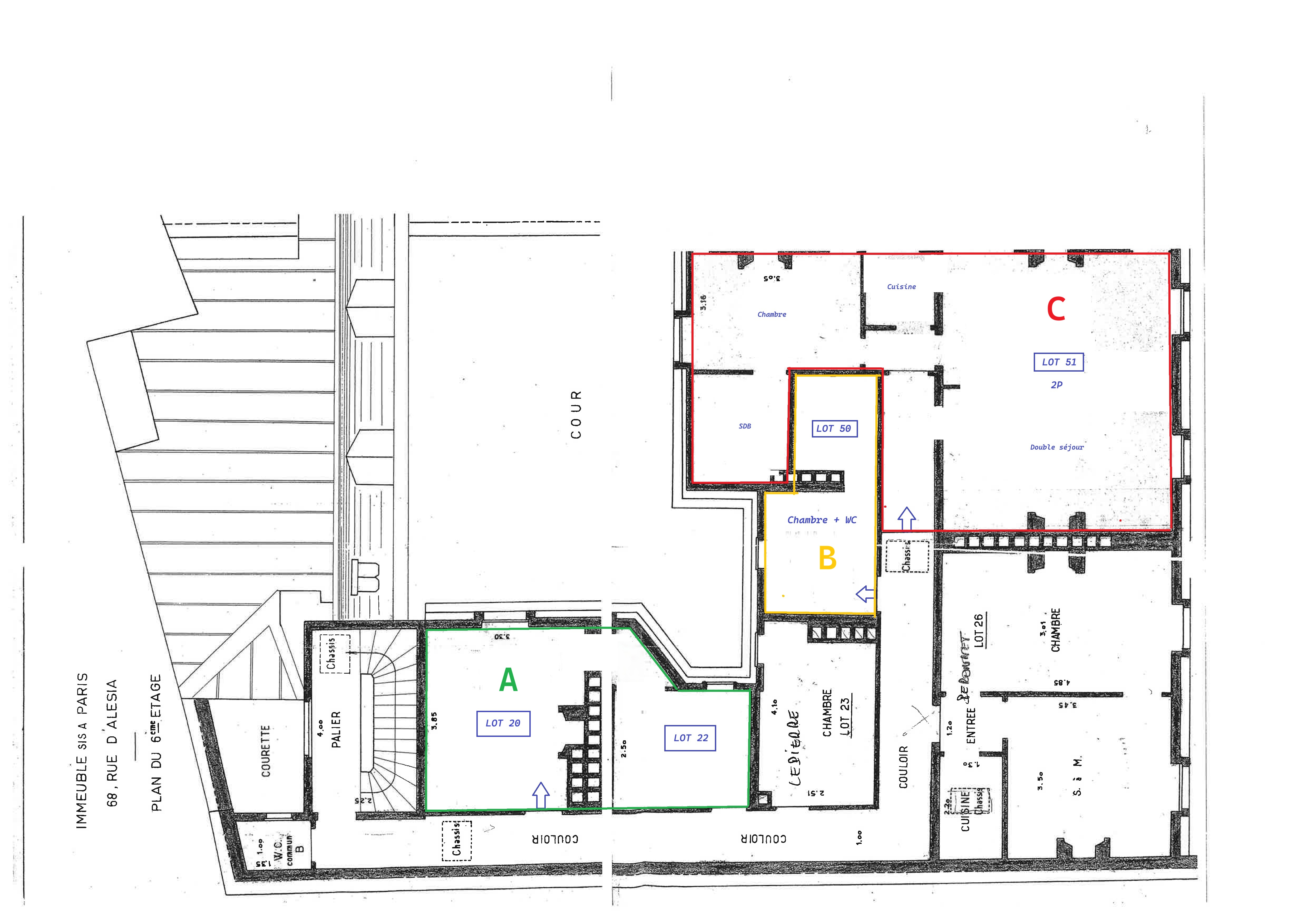
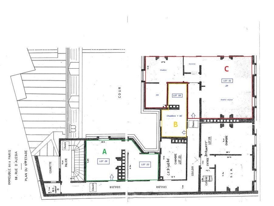
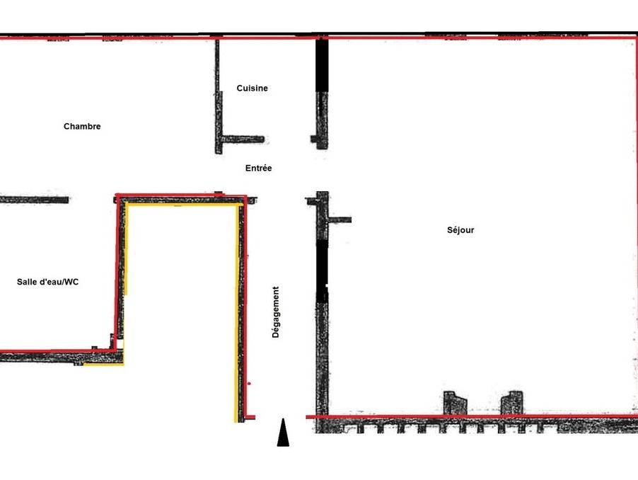
Alésia, au cœur du 14ᵉ arrondissement, nous proposons un appartement 3 pièces de 48,49 m² loi Carrez (49 m² au sol), situé au 6ᵉ et dernier étage sans ascenseur d’un immeuble récemment valorisé. Appartement lumineux bénéficiant d’une vue dégagée et d’un environnement calme en étage élevé. Le bien se compose comme suit : Une entrée, un double séjour avec vue dégagée (ou 2nd chambre), une cuisine ouverte, une chambre sur cour et une salle d’eau avec WC. Une cave complète ce bien. Plan fonctionnel, bien distribué, sans perte d’espace. --Potentiel d’agrandissement-- Possibilité d’acquérir en complément la petite chambre mitoyenne située sur le même palier, permettant un projet de réunion des lots et la création d’une surface plus importante au dernier étage. (Lot noté B au plan ci-joint). Concernant la copropriété. L'immeuble en excellent état : Toiture refaite avec isolation neuve, parties communes rénovées, sas d’entrée sécurisé avec interphone connecté, boîtes aux lettres neuves. Aucun travaux lourds à prévoir. DPE : D Dernier étage Immeuble sécurisé À proximité immédiate du métro Alésia (ligne 4), commerces, marché et transports. Quartier dynamique et recherché du 14ᵉ arrondissement.
  • Référence : DOM26221
  • Ville : Paris
  • Transaction : Vente
  • Type de bien : Appartement
  • Prix de vente : 479 000 €
  • Copropriété - nombres de lots : 40
  • Taxe foncière : 500 €
  • Surface : 49 m2
  • Année de construction : 1880
  • Nbr d'étages : 6
  • Surface séjour : 28.66 m2
  • Nbr de pièces : 3
  • Nbr de chambres : 1
  • Nbr SE : 1
  • Chauffage : electric
Performance énergétique (en KWh/m2/an)
Dpe
Performance climatique (en Kg éq CO2/m2/an)
Ges
Montant estimé des dépenses annuelles d’énergie pour un usage standard : année de référence - de 0€ à 0€
%
%

Vos mensualités

*apport calculé sur une base de 20%

Informations non contractuelles, fournies à titre indicatif
75 - Paris
Montant En % du prix du bien
Emoluments notaire %
Copies & formalités notaire 800 %
Total notaire %
Droits de mutation 5.80%
Publicité foncière 0.10%
Debours 400 %
TVA (sur part notaire) %
Total %
Informations non contractuelles, fournies à titre indicatif
Contactez-nous
* champs obligatoires
Biens similaires
399 900 € *
Situé au 7ème et dernier étage avec ascenseur (jusqu'au 5ème) d’un immeuble parisien bien entretenu de 1870, Ce 2 pièces de 23,6 carrez (28,57 m² au sol) offre un agencement optimisé et un excellent niveau de prestations. L’appartement se compose...
  • Nbr de pièces
    2
  • Nbr de chambres
    1
  • Nbr d'étages
    7
  • Ascenseur
    Oui
399 900 € *
* Les honoraires d'agence seront intégralement à la charge du vendeur
  • 2 Pièces
  • 1 Chambre
  • 28.57 m2
Réf. DOM17349
390 000 € *
Situé en étage avec ascenseur au calme sur cour au sein d’un immeuble récent avec gardien, cet appartement se distingue par sa luminosité et son excellent état général. L'appartement se compose comme suit : Une entrée avec rangements, un spacieux séj...
  • Surface terrain
    8 m2
  • Nbr de pièces
    2
  • Nbr de chambres
    1
  • Nbr d'étages
    6
  • Ascenseur
    Oui
390 000 € *
* Les honoraires d'agence seront intégralement à la charge du vendeur
  • 2 Pièces
  • 1 Chambre
Réf. DOM26483
423 000 € *
Au cœur du quartier prisé d’Aligre, à proximité immédiate des métros Ledru-Rollin et Gare de Lyon, cet appartement de 2 pièces d’une surface de 44,08 m² carrez est situé au 3ᵉ étage sans ascenseur d’un immeuble ancien de la fin du XIXᵉ siècle. L’app...
  • Nbr de pièces
    2
  • Nbr de chambres
    1
  • Nbr d'étages
    6
423 000 € *
* Les honoraires d'agence seront intégralement à la charge du vendeur
  • 2 Pièces
  • 1 Chambre
  • 44.08 m2
Réf. DOM28139
AGENCE SAP

112 boulevard de Rochechouart - 75018 Paris

Voir le téléphone
Nous contacter

Nous suivre sur les réseaux sociaux :

  • avis Google
  • Alerte email
  • Favoris 0
  • 0